Bilocale in vendita

Druento, Vicolo Naviglio
€ 149.000
2 locali 2 locali
65 Mq 65 Mq
1 bagno 1 bagno

Bilocale in vendita

Druento, Vicolo Naviglio

Descrizione annuncio

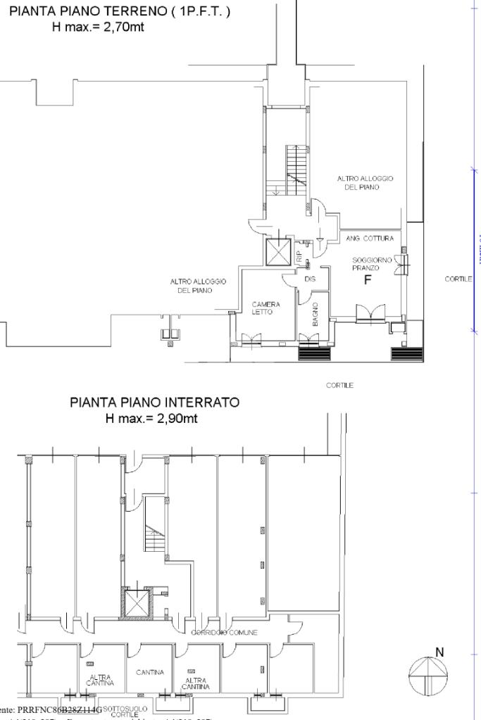
APPARTAMENTO CON TERRAZZO E BOX AUTO NELLE VICINANZE DEL CENTRO STORICO

In una palazzina in paramano ben tenuta e curata, situata a pochi passi dal suggestivo centro storico del paese, proponiamo in vendita un appartamento al piano terra che unisce la tranquillità della zona residenziale alla comodità di tutti i principali servizi: scuole, negozi, mezzi pubblici, e le aree verdi sono facilmente raggiungibili a piedi. L’abitazione si distingue per gli ampi spazi interni ed esterni, ideali per chi cerca comfort e vivibilità. La zona giorno è composta da un luminoso soggiorno con parete cottura, reso particolarmente arioso e accogliente grazie a due ampie porte-finestra che conducono all’esterno. Qui troviamo un terrazzo piastrellato di circa 20 mq, perfetto per pranzi all’aperto, momenti di relax o per ospitare amici e familiari. La camera da letto matrimoniale è spaziosa e ben proporzionata, facilmente arredabile con armadi di grandi dimensioni, comò e zona studio o angolo lettura. Il bagno finestrato è ampio e completo di tutti i sanitari. Completano la proprietà un box auto singolo ma ampio e una cantina al piano interrato, ideali per chi necessita di spazio aggiuntivo per bici, attrezzature o oggetti stagionali. Il riscaldamento è autonomo con spese di gestione contenute.

Mostra tutto

Nelle vicinanze

Trasporto pubblico Trasporto pubblico
Velasco
Velasco
100 m
Puccini
Puccini
220 m
Scuole Scuole
Scuola elementare "Anna Frank"
160 m
Scuole
160 m
Scuola media "Don Milani"
210 m
Farmacia Farmacia
Farmacia
270 m
Farmacia Comunale 16
450 m
Supermercati Supermercati
Discount
370 m
Negozi Negozi
Negozi
230 m
Bar Bar
Bar
460 m
La Fattoria del Gelato
2,3 Km
Ristoranti Ristoranti
Night & Day
200 m
Al Filatoio
620 m
Ristoranti
650 m
L'oca ceca
910 m
Mostra tutto

Caratteristiche

Rif.:
61120071
Piano:
1 di 3 con ascensore (Piano terra)
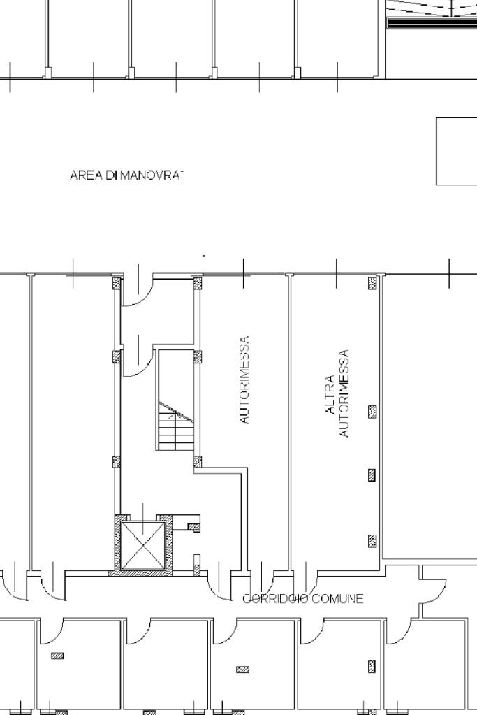
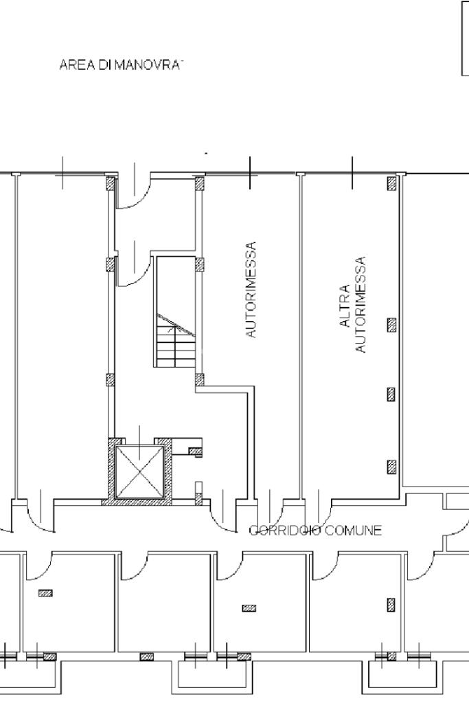
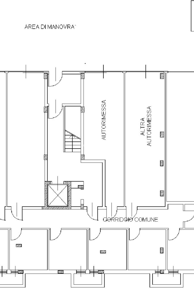
Box:
1
Posti auto:
1
Balconi:
1
Terrazzi:
1
Mostra tutto
Prezzo Prezzo
€ 149.000
Rata mutuo Rata mutuo
€ 683 / mese
Spese annue Spese annue
€ 700
Proponi il tuo prezzoProponi il tuo prezzo

Classe Energetica

D
D
D
D
D
D
D
D
D
EP globale non rinnovabile:
115.98 kW h/m² anno
EP globale rinnovabile:
0.00 kW h/m² anno
EP invernale del fabbricato:
EP estiva del fabbricato:
Anno di costruzione:
2006
Riscaldamento:
Autonomo
Tipo impianto:
A radiatori
Tipo alimentazione:
Metano

Ti interessa visionare l'immobile?

Fissa un appuntamento  Fissa un appuntamento

Richiedi informazioni

* Questi campi sono obbligatori

Calcola il tuo mutuo

Semplice e senza impegno
Anticipo

( % )
Mutuo

( % )

pochi semplici passi

inserisci i tuoi dati
Questionario completato
Grazie per aver richiesto un appuntamento senza impegno con un nostro Consulente del Credito e Assicurativo.

Hai inserito correttamente tutti i dati necessari e a breve riceverai una e-mail con un link da convalidare per inviare i tuoi dati.
Affiliato
Studio Druento D.I.
Via Torino, 46 10040 Druento (TO)

Il nostro staff


  • Andrea Palmieri
    Affiliato

  • Ivan Colò
    Responsabile

  • Sabrina Rizzotto
    Coordinatrice

  • Marco Simone Durante
    Collaboratore

  • Giada Ninghetto
    Collaboratrice
Via Torino, 46 10040 Druento (TO)
Zona: Druento-San Gillio
Mostra su mappa
Orari: Da lunedì a venerdì: 09,00 - 12,30; 15,00 - 19,30. Sabato chiusura alle 19,00. Domenica su appuntamento.
Affiliato
Studio Druento D.I.
Via Torino, 46 10040 Druento (TO)

2025 Tecnocasa Franchising S.p.A. - P. IVA 08365160152 - Via Monte Bianco 60/A 20089 Rozzano (MI). Ogni agenzia ha un proprio titolare ed è autonoma. Privacy policy | Policy utilizzo | Cookie policy