Quadrilocale in vendita

Druento, Via Giosuè Carducci
€ 280.000
4 locali 4 locali
110 Mq 110 Mq
1 bagno 1 bagno

Quadrilocale in vendita

Druento, Via Giosuè Carducci

Descrizione annuncio

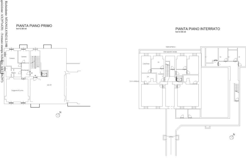
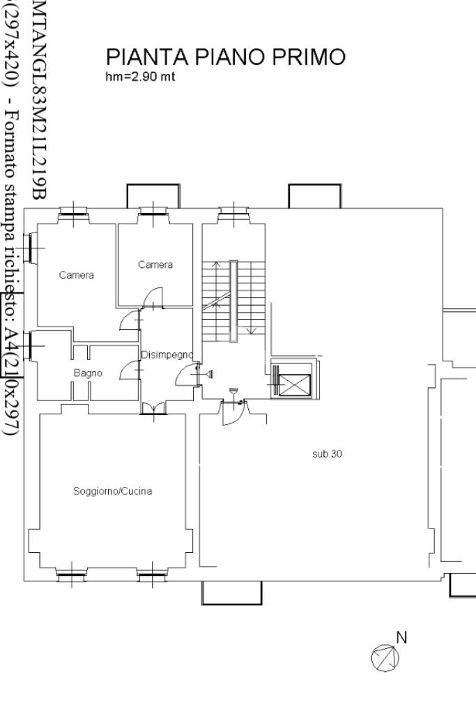
Nel centro di Druento, all’interno della prestigiosa Villa Giovine, elegante residenza signorile dei primi dell’Ottocento finemente restaurata, originariamente conosciuta come Cascina Belard, poi Reynaldi e Vigna, proponiamo in vendita un raffinato appartamento al primo piano servito da ascensore. La ristrutturazione dell’intero complesso ha mantenuto intatto il pregio storico della villa, integrando comfort moderni e soluzioni funzionali. L’ambiente principale dell’appartamento si presenta come un’ampia zona giorno, dove si fondono con naturale equilibrio la zona living e la cucina. Lo spazio è caratterizzato da soffitti alti con eleganti volte a botte e grandi finestre che donano luce naturale, con affacci che valorizzano la vista sul parco circostante. L’ambiente, caldo e accogliente, è ideale per chi ama vivere in spazi ariosi e raffinati; la predisposizione per il camino consente di creare un angolo suggestivo, perfetto per momenti di relax o zona notte, silenziosa e ben separata, è composta da due camere da letto. La camera principale di ampie metrature,si presenta come un ambiente luminoso elegante ed accogliente, con doppia finestra e soffitto con travi a vista in legno. La seconda camera, versatile, può essere utilizzata come studio o stanza ampie porte finestre conducono a un balcone privato, ideale per godersi momenti di relax all’aria bagno ampio e luminoso, è dotato di sanitari sospesi, doccia e vasca separate, una porta finestra con accesso al balcone ed un termoarredo partico in ogni stagione. L’appartamento è servito da riscaldamento a pavimento, che garantisce un comfort termico uniforme. Completano la proprietà un ampio box auto di 30 mq, un posto auto privato all’interno del cortile e l’accesso al parco condominiale della villa, accuratamente mantenuto e immerso nel verde.

Mostra tutto

Nelle vicinanze

Trasporto pubblico Trasporto pubblico
Oropa Capolinea
Oropa Capolinea
740 m
Velasco
Velasco
750 m
Scuole Scuole
Scuola media "Don Milani"
590 m
Scuole
610 m
Scuola elementare "Anna Frank"
630 m
Scuola Primaria "Gianni Rodari"
2,6 Km
Farmacia Farmacia
Farmacia
650 m
Farmacia Comunale 16
1,2 Km
Supermercati Supermercati
Discount
1,2 Km
Negozi Negozi
Negozi
550 m
Bar Bar
Bar
640 m
La Fattoria del Gelato
1,8 Km
Ristoranti Ristoranti
Night & Day
660 m
Ristoranti
710 m
L'oca ceca
840 m
Al Filatoio
1,4 Km
Mostra tutto

Caratteristiche

Rif.:
61131288
Piano:
1 di 2 con ascensore (Piano basso)
Box:
1
Posti auto:
1
Balconi:
1
Camere da letto:
2
Mostra tutto
Prezzo Prezzo
€ 280.000
Rata mutuo Rata mutuo
€ 1.330 / mese
Spese annue Spese annue
€ 3.000
Proponi il tuo prezzoProponi il tuo prezzo
Immobile valutato con T·Valuta

Classe Energetica

D
D
D
D
D
D
D
D
D
EP globale non rinnovabile:
277.16 kW h/m² anno
EP globale rinnovabile:
112.54 kW h/m² anno
EP invernale del fabbricato:
EP estiva del fabbricato:
Anno di costruzione:
1800
Riscaldamento:
Centralizzato
Tipo impianto:
A pavimento
Tipo alimentazione:
Metano

Ti interessa visionare l'immobile?

Fissa un appuntamento  Fissa un appuntamento

Richiedi informazioni

Clicca su Leggi per aprire l'informativa
* Questi campi sono obbligatori

Calcola il tuo mutuo

Semplice e senza impegno
Anticipo

( % )
Mutuo

( % )

pochi semplici passi

inserisci i tuoi dati
Questionario completato
Grazie per aver richiesto un appuntamento senza impegno con un nostro Consulente del Credito e Assicurativo.

Hai inserito correttamente tutti i dati necessari e a breve riceverai una e-mail con un link da convalidare per inviare i tuoi dati.
Affiliato
Studio Druento D.I.
Via Torino, 46 10040 Druento (TO)

Il nostro staff


  • Andrea Palmieri
    Affiliato

  • Ivan Colò
    Responsabile

  • Sabrina Rizzotto
    Coordinatrice

  • Marco Simone Durante
    Collaboratore

  • Giada Ninghetto
    Collaboratrice
Via Torino, 46 10040 Druento (TO)
Zona: Druento-San Gillio
Mostra su mappa
Orari: Da lunedì a venerdì: 09,00 - 12,30; 15,00 - 19,30. Sabato chiusura alle 19,00. Domenica su appuntamento.
Affiliato
Studio Druento D.I.
Via Torino, 46 10040 Druento (TO)

2026 Tecnocasa Franchising S.p.A. - P. IVA 08365160152 - Via Monte Bianco 60/A 20089 Rozzano (MI). Ogni agenzia ha un proprio titolare ed è autonoma. Privacy policy | Policy utilizzo | Cookie policy