6 locali in vendita

Druento, Via Mario Brundi
€ 245.000
6 locali 6 locali
160 Mq 160 Mq
2 bagni 2 bagni

6 locali in vendita

Druento, Via Mario Brundi

Descrizione annuncio

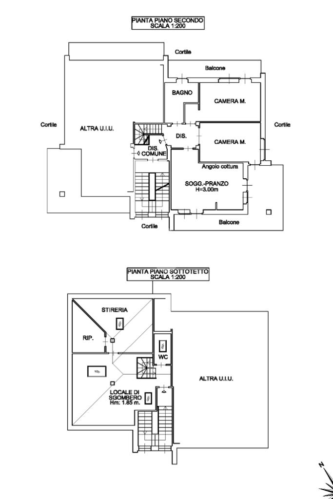
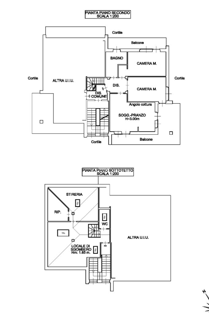
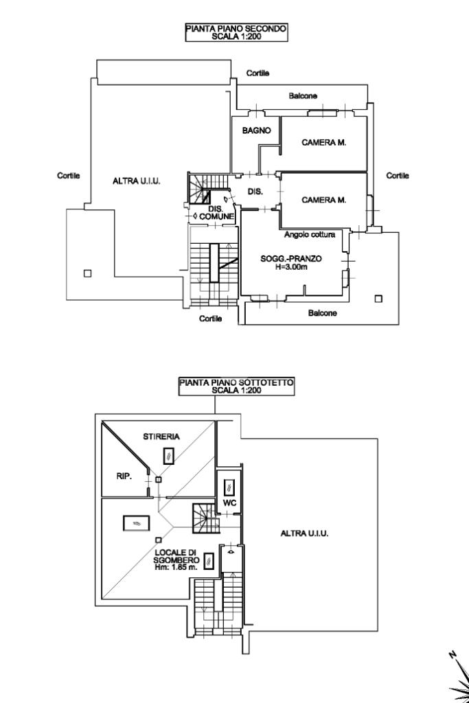
In zona comoda a tutti i principali servizi e nelle immediate vicinanze delle scuole, proponiamo in vendita un appartamento situato al secondo e ultimo piano di una palazzina in si apre su un ingresso con disimpegno che collega in modo funzionale tutti gli ambienti.
La zona giorno è composta da un ampio e luminoso soggiorno con cucina a vista, caratterizzato da spazi ben distribuiti e accoglienti, con accesso diretto al terrazzo troviamo una cameretta molto luminosa, dotata di ampie finestre e con accesso allo stesso terrazzo; in base alle proprie esigenze, è possibile unire i due ambienti per creare un’unica e grande zona camera matrimoniale dispone di accesso al balcone, così come il bagno finestrato, completo di vasca e disimpegno, tramite scala interna, si accede alla mansarda abitabile, composta da un secondo bagno e tre locali ideali come camere, studio o spazi multifunzionali . La mansarda è accessibile anche tramite scala condominiale, rendendo l’ambiente particolarmente versatile e è stato ristrutturato nel 2020, con sostituzione degli infissi in PVC. Il riscaldamento è centralizzato con la proprietà un box auto e un giardino ad uso privato.

Mostra tutto

Nelle vicinanze

Trasporto pubblico Trasporto pubblico
Velasco
Velasco
260 m
Puccini
Puccini
340 m
Scuole Scuole
Scuole
120 m
Scuola elementare "Anna Frank"
120 m
Scuola media "Don Milani"
120 m
Farmacia Farmacia
Farmacia
380 m
Farmacia Comunale 16
540 m
Supermercati Supermercati
Discount
490 m
Negozi Negozi
Negozi
150 m
Bar Bar
Bar
550 m
La Fattoria del Gelato
2,2 Km
Ristoranti Ristoranti
Night & Day
310 m
Al Filatoio
660 m
Ristoranti
750 m
L'oca ceca
1,0 Km
Mostra tutto

Caratteristiche

Rif.:
61161550
Piano:
2 di 2 (ultimo Piano)
Box:
1
Balconi:
1
Terrazzi:
1
Camere da letto:
2
Mostra tutto
Prezzo Prezzo
€ 245.000
Rata mutuo Rata mutuo
€ 1.154 / mese
Spese annue Spese annue
€ 2.400
Proponi il tuo prezzoProponi il tuo prezzo

Classe Energetica

E
E
E
E
E
E
E
E
E
EP globale non rinnovabile:
277.16 kW h/m² anno
EP globale rinnovabile:
112.54 kW h/m² anno
Anno di costruzione:
1980
Riscaldamento:
Centralizzato
Tipo impianto:
A radiatori
Tipo alimentazione:
Metano

Ti interessa visionare l'immobile?

Fissa un appuntamento  Fissa un appuntamento

Richiedi informazioni

Clicca su Leggi per aprire l'informativa
* Questi campi sono obbligatori

Calcola il tuo mutuo

Semplice e senza impegno
Anticipo

( % )
Mutuo

( % )

pochi semplici passi

inserisci i tuoi dati
Questionario completato
Grazie per aver richiesto un appuntamento senza impegno con un nostro Consulente del Credito e Assicurativo.

Hai inserito correttamente tutti i dati necessari e a breve riceverai una e-mail con un link da convalidare per inviare i tuoi dati.
Affiliato
Studio Druento D.I.
Via Torino, 46 10040 Druento (TO)

Il nostro staff


  • Andrea Palmieri
    Affiliato

  • Ivan Colò
    Responsabile

  • Sabrina Rizzotto
    Coordinatrice

  • Marco Simone Durante
    Collaboratore

  • Giada Ninghetto
    Collaboratrice
Via Torino, 46 10040 Druento (TO)
Zona: Druento-San Gillio
Mostra su mappa
Orari: Da lunedì a venerdì: 09,00 - 12,30; 15,00 - 19,30. Sabato chiusura alle 19,00. Domenica su appuntamento.
Affiliato
Studio Druento D.I.
Via Torino, 46 10040 Druento (TO)

2026 Tecnocasa Franchising S.p.A. - P. IVA 08365160152 - Via Monte Bianco 60/A 20089 Rozzano (MI). Ogni agenzia ha un proprio titolare ed è autonoma. Privacy policy | Policy utilizzo | Cookie policy