Porzione di bifamiliare in vendita

Druento, Via Vittorio Alfieri
€ 460.000
7 locali 7 locali
160 Mq 160 Mq
3 bagni 3 bagni

Porzione di bifamiliare in vendita

Druento, Via Vittorio Alfieri

Descrizione annuncio

DRUENTO – PORZIONE DI VILLA IN NUOVA COSTRUZIONE, POSIZIONE SOLEGGIATA E VERDE.

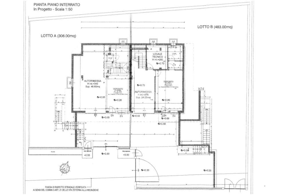
Nel cuore di Druento, in una posizione collinare soleggiata e immersa nel verde, proponiamo una porzione di villa di nuova costruzione con terreno privato su tre lati di circa 306 mq. L’immobile si trova sul lato sinistro rispetto all’altra porzione, offrendo privacy e tranquillità. La casa, lasciata allo stato grezzo e senza tramezzature interne, permette di progettare gli spazi interni in base alle esigenze personali di ogni famiglia, garantendo così la massima libertà di personalizzazione. I serramenti esterni e le colonne di scarico degli impianti sono già installati, mentre restano da completare tutte le finiture interne: pavimenti, rivestimenti, impianti elettrici e idraulici, oltre agli attacchi per cucina e bagno. Al piano interrato, con un’altezza di 3,40 metri, si trova un’autorimessa di 47 mq e un ampio locale deposito di 29 mq, particolarmente interessante perché permette di ricoverare comodamente un camper mansardato. Completano il piano un disimpegno e un locale tecnico, con accesso interno tramite scala che collega i vari livelli. Al piano superiore si sviluppa la zona giorno, luminosa e funzionale, con un soggiorno-pranzo che si apre su un terrazzo che si trasforma in balcone perimetrale su tre lati, offrendo una vista panoramica e spazi esterni molto vivibili. Completano il piano una cucina abitabile, un bagno e uno spazio dedicato a studio, perfetto per lavorare da casa o come zona multifunzionale. Il piano mansardato, con un’altezza media di 2,70 metri, ospita due camere da letto, un disimpegno e un ulteriore bagno, offrendo un ambiente accogliente e riservato per la zona notte. Questa porzione di villa rappresenta un’opportunità unica per chi cerca una soluzione moderna e personalizzabile in un contesto verde e tranquillo, senza rinunciare alla comodità di essere a pochi passi dal centro storico di Druento. Siamo a disposizione per incontrare coloro che intendono valutare l’acquisto e discutere un preventivo per completare gli interni, offrendo piena libertà di personalizzazione degli ambienti.

Mostra tutto

Nelle vicinanze

Trasporto pubblico Trasporto pubblico
Velasco
Velasco
930 m
Oropa Capolinea
Oropa Capolinea
940 m
Scuole Scuole
Scuola media "Don Milani"
740 m
Scuole
760 m
Scuola elementare "Anna Frank"
780 m
Scuola Primaria "Gianni Rodari"
2,4 Km
Farmacia Farmacia
Farmacia
830 m
Farmacia Comunale 16
1,4 Km
Supermercati Supermercati
Discount
1,3 Km
Negozi Negozi
Negozi
690 m
Bar Bar
Bar
840 m
La Fattoria del Gelato
1,6 Km
Ristoranti Ristoranti
Night & Day
840 m
Ristoranti
910 m
L'oca ceca
1,0 Km
Al Filatoio
1,5 Km
Te la do io la pizza...Ristò
2,9 Km
Mostra tutto

Caratteristiche

Rif.:
61031928
Piano:
3 di 3 (Piano su più livelli)
Box:
1
Posti auto:
3
Balconi:
1
Terrazzi:
1
Mostra tutto
Prezzo Prezzo
€ 460.000
Rata mutuo Rata mutuo
€ 2.185 / mese
Spese annue Spese annue
€ 0
Proponi il tuo prezzoProponi il tuo prezzo

Classe Energetica

A3
A3
A3
A3
A3
A3
A3
A3
A3
EP globale non rinnovabile:
12.21 kW h/m² anno
EP globale rinnovabile:
59.53 kW h/m² anno
EP invernale del fabbricato:
EP estiva del fabbricato:
Anno di costruzione:
2025
Riscaldamento:
Autonomo
Tipo impianto:
A pavimento
Tipo alimentazione:
Metano

Ti interessa visionare l'immobile?

Fissa un appuntamento  Fissa un appuntamento

Richiedi informazioni

Clicca su Leggi per aprire l'informativa
* Questi campi sono obbligatori

Calcola il tuo mutuo

Semplice e senza impegno
Anticipo

( % )
Mutuo

( % )

pochi semplici passi

inserisci i tuoi dati
Questionario completato
Grazie per aver richiesto un appuntamento senza impegno con un nostro Consulente del Credito e Assicurativo.

Hai inserito correttamente tutti i dati necessari e a breve riceverai una e-mail con un link da convalidare per inviare i tuoi dati.
Affiliato
Studio Druento D.I.
Via Torino, 46 10040 Druento (TO)

Il nostro staff


  • Andrea Palmieri
    Affiliato

  • Ivan Colò
    Responsabile

  • Sabrina Rizzotto
    Coordinatrice

  • Marco Simone Durante
    Collaboratore

  • Giada Ninghetto
    Collaboratrice
Via Torino, 46 10040 Druento (TO)
Zona: Druento-San Gillio
Mostra su mappa
Orari: Da lunedì a venerdì: 09,00 - 12,30; 15,00 - 19,30. Sabato chiusura alle 19,00. Domenica su appuntamento.
Affiliato
Studio Druento D.I.
Via Torino, 46 10040 Druento (TO)

2026 Tecnocasa Franchising S.p.A. - P. IVA 08365160152 - Via Monte Bianco 60/A 20089 Rozzano (MI). Ogni agenzia ha un proprio titolare ed è autonoma. Privacy policy | Policy utilizzo | Cookie policy